The Freedom Hotel - Contemporary Hotel Design in Phuket

The Freedom Hotel - Contemporary Hotel Design in Phuket - view #2

The Freedom Hotel is a modern and luxurious hotel in Phuket island in Thailand. With the mountains and a picturesque rocks and trees as its stunning backdrop, The Freedom Hotel offers the perfect natural environment for ultimate privacy and tranquility. Guests can relax and enjoy the stunning panoramic sea views of Freedom Beach whilst nestled in the sea view hills.

Designed by the designers of INDESIGNCLUB in collaboration with the architects of VICWORK STUDIO, this modern and style hotel redefines the concept of hospitality. With its emphasis on harmony and freedom, The Freedom Hotel is a haven of tranquility where guests can immerse themselves in the beauty of this unique place.

The Freedom Hotel - Contemporary Hotel Design in Phuket - view #1

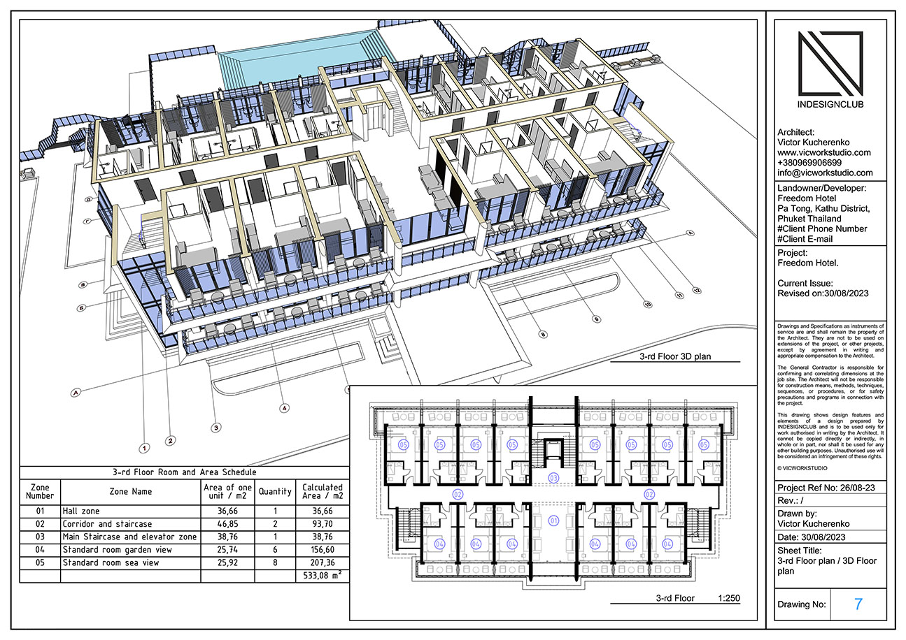
The Freedom Hotel boasts a total of 36 rooms spread across three floors, offering guests the choice of sea view and garden view suites, each spanning 26 square meters. The rooms are meticulously designed, incorporating high-quality materials that seamlessly blend with the natural environment. The contemporary style of the suites is complemented by spacious balconies that provide breathtaking views of the sea and garden, inviting guests to relax and unwind in style. The hotel's recreational facilities, including massage, pool, garden, water sports, will help guests to relax and unwind in comfort.

The Freedom Hotel - Contemporary Hotel Design in Phuket - view #3

In designing this hotel, we were inspired by the sense of freedom and harmony emanating from this part of Phuket's seashore. The three-storey hotel building with its large roof terraces has maritime design references. The streamlined elements of the horizontal termination of the balconies and terraces, the vertical wave-shaped elements of the balcony divisions, the ellipse-shaped elements of the column finishes pay homage to the sleek design of seagoing vessels.

The Freedom Hotel - Contemporary Hotel Design in Phuket - view #4

The hotel sits above a terrace with a large "infinity-adge" swimming pool. This swimming pool where the water flows over frontal edge, producing a visual effect of water with no boundary. The large terrace with swimming pool, complemented by a chic bar, is designed as a cosy, exclusive beach club where guests will be happy spending time enjoying the beautiful location. This confirms the commitment of INDESIGNCLUB to creating spaces that seamlessly combine functionality, style and natural beauty.

The Freedom Hotel - Contemporary Hotel Design in Phuket - view #5

The facade of the hotel is finished with teak wood elements, which, combined with the white semi glossy finish of the balconies and terraces, have a marine-like design organically connecting the architecture and the environment. Balcony, terrace and staircase railings with polished stainless steel elements and glass panels enhance this impression with their design.

The Freedom Hotel - Contemporary Hotel Design in Phuket - view #6

The Freedom Hotel in Phuket, Thailand, designed by the talented architects at INDESIGNCLUB, stands as a beacon of contemporary architectural aesthetics. From its maritime-inspired design elements to the seamless integration with the natural environment, every aspect of this hotel reflects a commitment to elegance, tranquility, and freedom.

The Freedom Hotel - Contemporary Hotel Design in Phuket - view #7

It is important to note that we use Building Information Modeling (BIM) design technology throughout the design process, which made it possible to ensure a seamless and collaborative approach to realizing our vision and embodiment of our plan. One of the key advantages of using BIM in The Freedom Hotel project was the enhanced efficiency in design and collaboration. The technology allowed architects and engineers to work concurrently on a shared digital model. This collaborative environment not only streamlined the design process but also facilitated better communication and coordination among the project team.

The Freedom Hotel BIM-model

The three-dimensional digital model serves as an extensive database, encompassing detailed information about building components, materials, and systems. For professional participants involved in the project, BIM technology served as a powerful visualization tool. The Freedom Hotel BIM model allowed stakeholders of the project to navigate and comprehend the intricacies of The Freedom Hotel's design, contributing to informed decision-making during the design phase.

The Freedom Hotel - Contemporary Hotel Design in Phuket - view #8

For those looking for efficient, functional and stylish modern design solutions, INDESIGNCLUB offers all its experience and craftsmanship.  Contact us and we will provide you with all the advantages of BIM design.

Author of the project - architect Victor Kucherenko.

GO TO THE GALLERY OF OUR PROJECTS